RIF | Reforma Isla de Flores

Montevideo, Uruguay 2024

Cliente:

Privado

Programa:

Residencial

Modalidad:

Encargo Directo

Superficie:

240m2

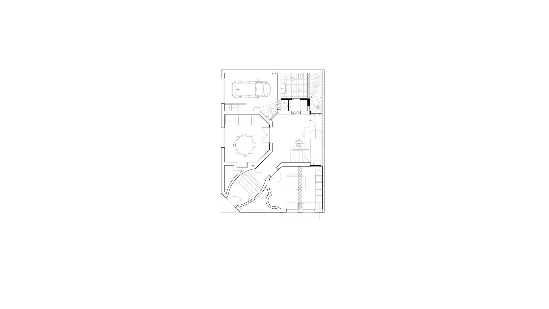
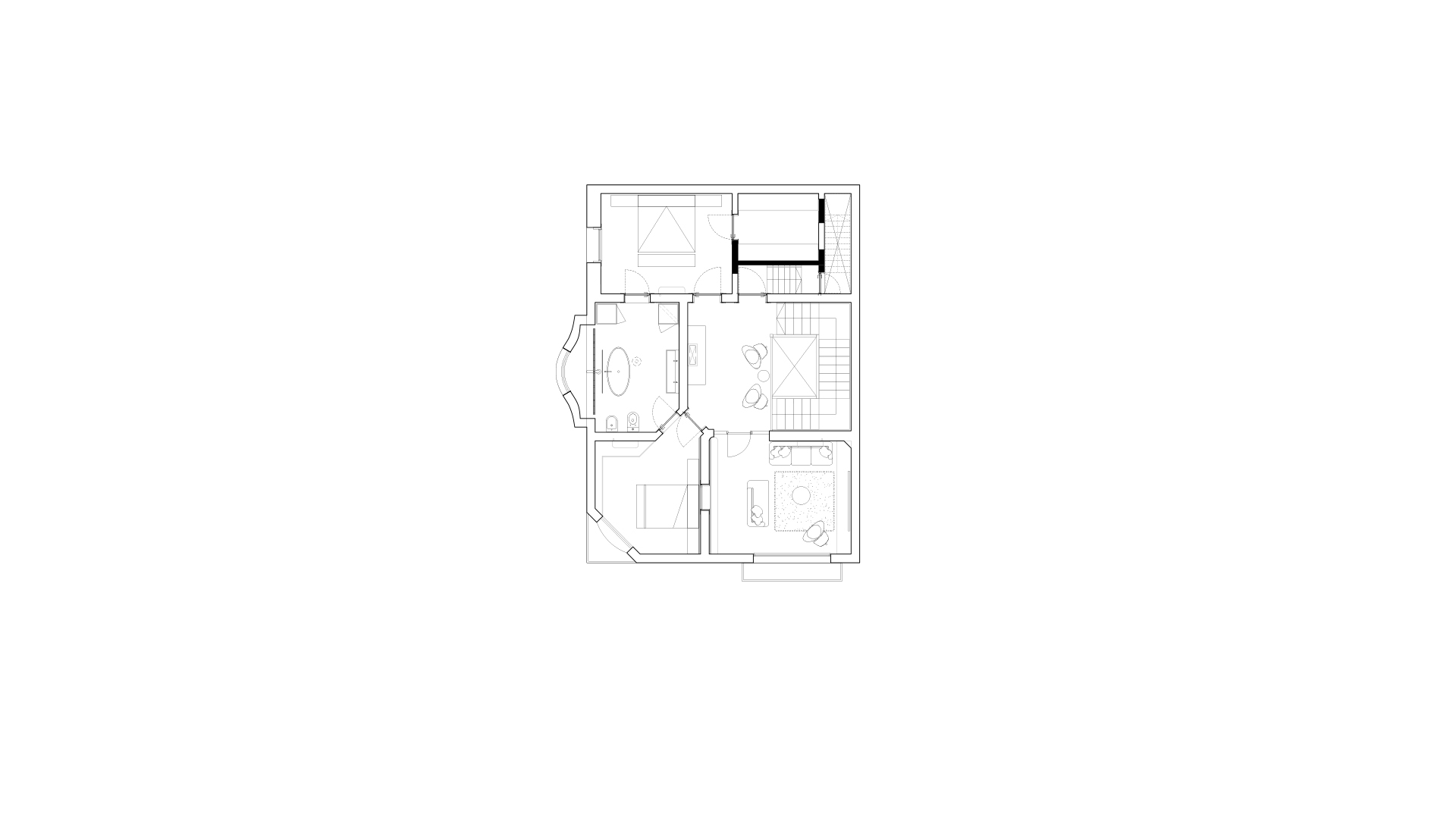
Casa RIF es el resultado de la cuidadosa transformación de una construcción de alto valor patrimonial, originalmente concebida como un "Petit Hotel", una tipología arquitectónica de principios del siglo XX, típica de grandes ciudades como Buenos Aires y Montevideo, pensada para alojar temporalmente a familias provenientes del campo.
La edificación existente, notable por su excelente estado de conservación, constituye un ejemplo representativo del estilo Art Nouveau, importado desde Europa en las primeras décadas del siglo pasado.
La intervención, profundamente respetuosa de la organización y la lógica espacial original, abordó la reformulación de la cocina y el baño social en planta baja, así como el reordenamiento funcional del dormitorio principal, el vestidor y el baño en planta alta.

Además, se proyectó un nuevo diseño para la azotea, que fue concebida como el principal espacio exterior de la vivienda, accesible a través de un recorrido fluido y amable desde las áreas nobles de la casa hasta este ámbito singular. La grilla espacial que se ubica sobre la azotea oficia de remate de la construcción y es soporte estructural de los toldos y la iluminación del espacio exterior.

Proyecto:

Arqs.

Carlos Labat
Pierino Porta
Gonzalo Dellepiane
Romina Mangini
Eugenia Urrutia
Patricia Pistone
Fernanda Taño
Federico Latorre

Asesores:

Estructura:

Magnone-Pollio Ingenieros

Fotografía:

Sebastián Aguilar

Interiorismo:

Monoccino

Programa:

Residencial

Área:

240m2 edificado

120m2 espacios exteriores